St Aubyns Mead, Rottingdean
Property description
Excellent opportunity to acquire this mid terrace seaside home, being only one of just four of this particular design. Located adjacent to the village centre, in this most sought after development which backs onto Newlands Road, and benefitting from own private single garage and driveway/parking space. Gas fired heating and replacement double glazing installed, while the property would also benefit from decoration and further general improvement The property is offered for sale with vacant possession and no ongoing chain.
Front door to:
ENTRANCE PORCH
Tiled flooring, light and inner glazed door to:
ENTRANCE HALLWAY
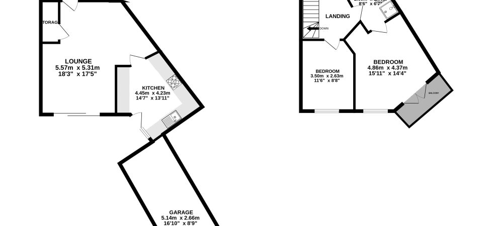
Radiator, double cupboard.
CLOAKROOM
W.C, wash basin with under counter cupboards, extractor fan and radiator.
LOUNGE/DINING ROOM
Comprising a delightful irregular shaped room with double glazed sliding patio doors overlooking and accessing rear garden, radiator, feature brick fire surround, deep under stair storage cupboard, housing consumer unit and electric meter.
KITCHEN
A generous size room with double glazed window and casement door to the rear garden, laminate flooring, range of wall and base units, work surfaces incorporating sink unit, mixer tap, gas hob unit with extractor above, double oven split-level cooker, space for washing machine, dishwasher and fridge / freezer.
Staircase from HALLWAY to: FIRST FLOOR LANDING Access to loft hatch.
BEDROOM ONE
Double glazed windows to rear elevation with sea views. Radiator and fitted mirrored wardrobe cupboards. Double patio door to:
FEATURE SMALL BALCONY
Secluded with Sea views.
FAMILY BATHROOM
Access door from Bedroom One. Tiled walls, shower enclosure, panelled bath with mixer tap and independent shower unit, wash basin with wall mirror above, w/c and recessed ceiling spot lights.
BEDROOM TWO
Double glazed windows to rear elevation with sea views and radiator.
BEDROOM THREE
Double glazed windows to front elevation, fitted wardrobes and drawers, further cupboard housing hot water cylinder tank and radiator.
REAR GARDEN
Laid to paved patio area, with steps up to lawn area with shrubs and trees. Side access gate to:
GARAGE
Electric up and over door, power and light, private driveway affording parking space.




























